Codice V5158 - basso commerciale con garage
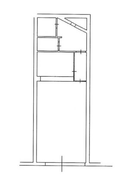
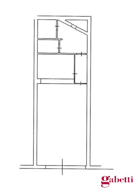
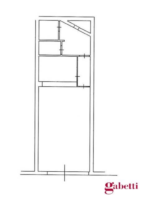
    Il basso è posto al piano terra, di un edificio di tre piani, mentre il garage è posto al piano seminterrato. Entrambi gli immobili sono collegati da una botola interna. Il basso ha una grande vetrina su strada (per tutta la facciata dell’immobile), un grande vano commerciale, piccolo corridoio, locale cucina, vano interno (che può fungere da magazzino o ufficio), due bagni.
    • Prezzo
      110.000 EUR
    • Spese condominiali
      30 EUR
    • Classe
      G
    • Locali
      1
    • Mq Box
      28
    • Stato Immobile
      Buono
    • Grado
      Medio
    • Totale Piani
      Tre
    • via necropoli grotticell, Siracusa (SR)