Codice sr2025/158 - basso commerciale con garage
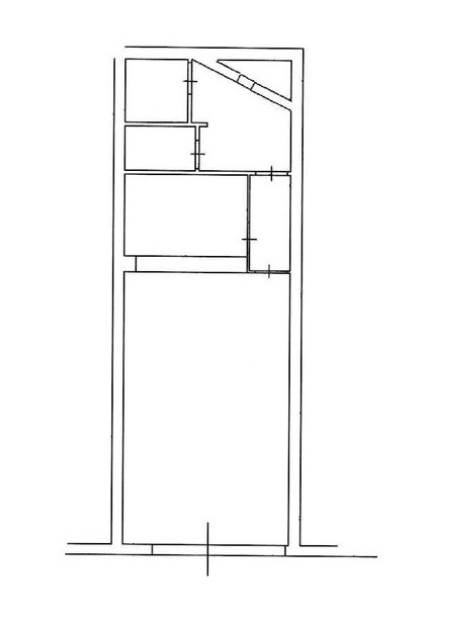
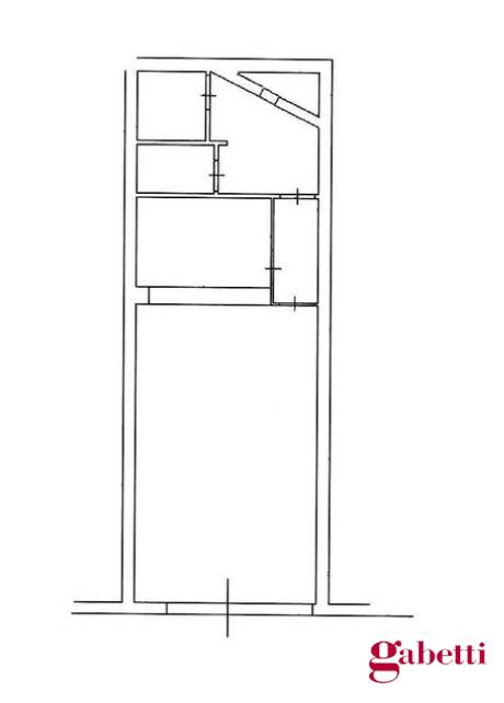
    Grotticelle, Gabetti Siracusa propone in vendita, a 110.000 euro, un basso a reddito con garage. L’immobile è attualmente locato ad un’attività commerciale avviata (con contratto che scade nel 2030, più l’opzione rinnovo di altri sei anni), che genera un reddito mensile stabile. Il basso è posto al piano terra, di un edificio di tre piani, mentre il garage è posto al piano seminterrato. Entrambi gli immobili sono collegati da una botola interna. Il basso ha una grande vetrina su strada (per tutta la facciata dell’immobile), un grande vano commerciale, piccolo corridoio, locale cucina, vano interno (che può fungere da magazzino o ufficio), due bagni. Il garage collegato può essere utilizzato come magazzino (grazie anche alla botola che ne facilità l’utilizzo).
    • Prezzo
      110.000 EUR
    • Spese condominiali
      30 EUR
    • Classe
      G
    • Locali
      1
    • Mq Box
      28
    • Stato Immobile
      Buono
    • Grado
      Medio
    • Totale Piani
      Tre